Bombe in Essen:Bombe in Kupferdreh musste gesprengt werden
Veröffentlicht: Samstag, 16.01.2021 13:04
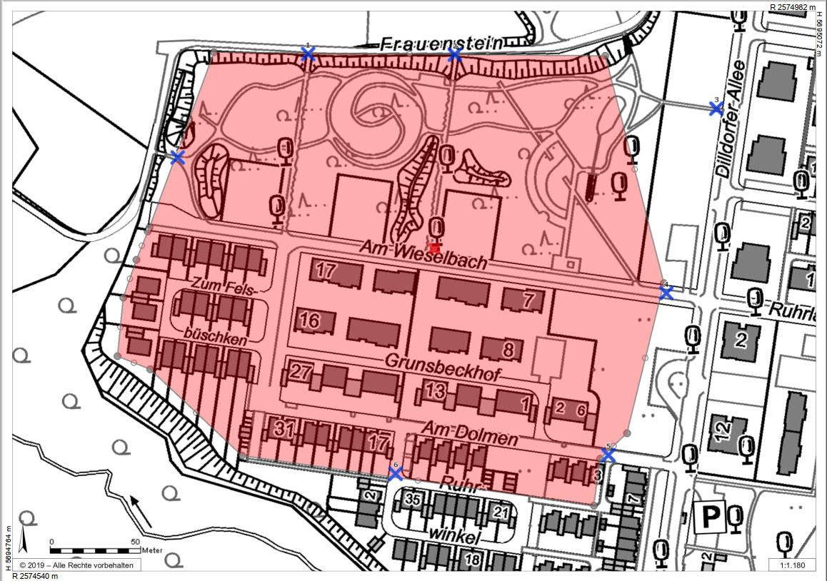
Bei uns in Essen ist erneut eine Bombe gefunden worden. Der Blindgänger aus dem Zweiten Weltkrieg lag an der Straße Am Wieselbach in Kupferdreh. Er musste gesprengt werden.

Essen: Bombe entdeckt - Liveticker zur Bombenentschärfung
13:04 Uhr: Die Bombe ist erfolgreich gesprengt und die Anwohner:innen können wieder in ihre Wohnungen. Die Sperrstellen werden nach und nach aufgehoben. Vielen Dank an alle Beteiligten!
12:59 Uhr: Die Vorbereitungen für die Sprengung sind abgeschlossen.
12:15 Uhr: Noch wird die Sprengung in den letzten Zügen vorbereitet. Ein Bagger verfüllt gerade noch das Loch mit Sand, der Zünder ist bereits angebracht. Nachdem der Entschärfer ein akustisches Warnsingal gibt, erfolgt die Sprengung.
11:35 Uhr: Der zweite Durchgang ist abgeschlossen. Jetzt kann der Kampfmittelräumdienst die Sprengung vorbereiten.
11:25 Uhr: Insgesamt sind rund 250 Menschen von der Evakuierung betroffen. Krankentransporte gab es diesmal nicht. Auch in der Betreuungsstelle ist es ruhig - keine einzige Person ist dort, berichtet unser Radio Essen-Stadtreporter.
11:10 Uhr: Der zweite Evakuierungs-Durchgang hat begonnen. Wenn sich niemand mehr innerhalb des Evakuierungskreises befindet, kann die Bombe in das präparierte Loch gelassen und dann gesprengt werden.
11:07 Uhr: Der erste Evakuierungs-Durchgang ist nun beendet und die Sperrstellen werden zugezogen. Das Loch für den Blindgänger ist bereits fertig ausgegraben.
10:54 Uhr: Mike Wehner vom Kampfmittelräumdienst erklärt im Gespräch mit Radio Essen, dass "beide Zünder in sehr schlechtem Zustand sind". Dennoch sei die Sprengung heute "handhabbar", wenn keine außergewöhnlichen Umstände dazukommen. Dazu zählt etwa eine besonders dichte Bebauung. In Kupferdreh sei dies zwar grenzwertig, aber ausreichend.
10:30 Uhr: Unser Radio Essen-Stadtreporter berichtet, dass es nun deutlich leerer vor Ort geworden ist. Viele Rollläden sind zugezogen, zahlreiche Menschen fahren zu ihrer Familie.
10:33 Uhr: Die Bombe kommt in ein sechs Meter tiefes Loch, das gerade vorbereitet wird. Dann soll das Loch mit Sand verfüllt und der Blindgänger gesprengt werden. Diesmal müssen allerdings nicht viele LKW-Ladungen mit Sand beschafft werden. Denn heute kann der Sand von der Baugrube verwendet werden.
10:20 Uhr: Die Stadt Essen hat die Evakuierungskarte veröffentlicht. Sie enthält - wie angekündigt (siehe 9:45 Uhr) - nur einen einzigen Evakuierungskreis.
Bomben-Entschärfung: Nur ein einziger Evakuierungskreis in Essen
10:18 Uhr: Der Entschärfer vom Kampfmittelräumdienst heute ist Mike Wehner. Er war bereits in der Vergangenheit nur selten in Essen im Einsatz. Aber "Bombe ist Bombe", so der Experte.
10:10 Uhr: Die Betreuungsstelle ist bereits eingerichtet, wie beim letzten Blindgänger auf dem Areal ist sie in der Turnhalle am Prinz-Friedrich-Platz 2. Maßnahmen zum Schutz vor dem Coronavirus werden dort natürlich getroffen: Wer sich krank fühlt, wird gesondert untergebracht und es besteht Maskenpflicht.
09:52 Uhr: Unsere Radio Essen-Stadtreporter berichtet, dass es bereits erste Durchsagen gibt und die Menschen vor Ort auf die Evakuierung hingewiesen werden.
09:45 Uhr: Bei dieser Bomben-Entschärfung wird es nur einen einzigen Evakuierungskreis geben. Dies entspricht dem inneren Kreis. Die Bombe soll besonders tief liegen und gesprengt werden, sodass nicht mit Splittern zurechnen sei. Daher ist kein zweiter Kreis nötig.
09:30 Uhr: Die Bombe hat zwei Zünder - einer ist stark deformiert. Deshalb muss der Blindgänger höchstwahrscheinlich gesprengt werden, erklärt die Stadt gegenüber Radio Essen.
09:15 Uhr: Der Blindgänger wurde über Nacht von einem Sicherheitsdienst bewacht. Wie Radio Essen erfuhr, blieb es aber die ganze Nacht ruhig um den Blindgänger.
09:10 Uhr: Bei dem Blindgänger handelt es sich um eine amerikanische Fünf-Zentner-Bombe.
09:00 Uhr: Heute Morgen trifft sich der Krisenstab der Stadt Essen, um die Bomben-Entschärfung zu besprechen und vorzubereiten. Dann soll es auch eine Karte mit Sperrzonen und dem Evakuierungs-Radius geben.
Zweite Bombe an der Baustelle in Essen
Bereits am Freitagnachmittag war die Bombe in Essen entdeckt worden. Da es aber in der Nacht Frost geben sollte, hatte der Entschärfer angekündigt, den Blindgänger erst am Samstag zu entschärfen. Der Fundort in Kupferdreh ist abgesperrt, und ein Wachdienst sorgt dafür, dass sich niemand der Bombe nähert. Der Bombenfund an der Baustelle Am Wieselbach ist schon der zweite innerhalb eines Jahres. Schon im August war hier ein Blindgänger entdeckt worden. Damals waren etwa 2.000 Anwohner:innen von der Entschärfung betroffen. Rund 1.100 von ihnen mussten während der Entschärfung ihre Wohnungen verlassen, der Rest nur während der Entschärfung drin bleiben.
Bombe gefunden? Die wichtigsten Hintergründe
Immer wieder werden in Essen Bomben aus dem Zweiten Weltkrieg gefunden. Sie müssen so schnell wie möglich entschärft werden, heißt es in der Verordnung der Bezirksregierung Düsseldorf. Konkret bedeutet das: Entschärfung und Evakuierung noch am gleichen Tag. Es gibt vor allem zwei Arten von Bomben, die bei uns gefunden werden und unterschiedlich gefährlich sind. Die Einzelheiten zu den Bomben, der Evakuierung und den Strafen findet Ihr im Artikel zu den Regeln bei Bombenentschärfungen.