
Neue Zentralbibliothek in Essen
Ein "öffentliches Wohnzimmer" soll sie sein - die neue Zentralbibliothek in der Essener Innenstadt. Schon länger ist klar, dass sie in die alte Mayersche Buchhandlung am Rande des Kennedyplatzes einziehen soll. Die Stadt hat nun die genauen Pläne für den Umbau des Hauses veröffentlicht. Die neue Essener Zentralbibliothek orientiert sich unter anderem an Vorbildern aus den Niederlanden, Dänemark, Norwegen und Finnland. Dort werden die Bibliotheken vor allem als Aufenthaltsort und Treffpunkt gesehen und eingerichtet. Den Politikerinnen und Politikern im Rat gefällt diese Idee. Sie haben die Pläne einstimmig abgenickt. Er sei "rundum glücklich", sagt Essens Kulturdezernent Muchtar Al Ghusain. Er und seine Mitarbeiterinnen und Mitarbeiter haben die Pläne für die neue Bibliothek vorangetrieben. Die FDP spricht von einem ersten Schritt, die Innenstadt wieder zu beleben. Die CDU sogar von einem "Meilenstein für die Innenstadt".
Zentralbibliothek in Essen bekommt Sitztreppe für Veranstaltungen
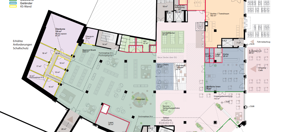
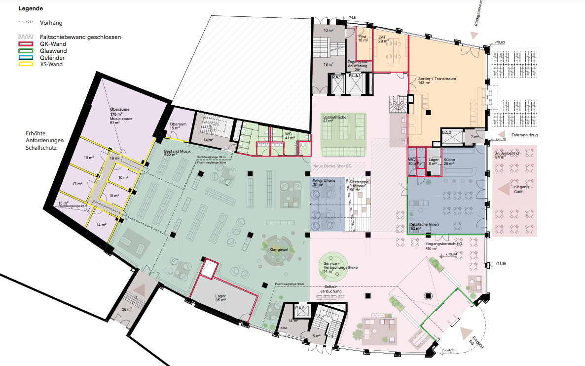
Im Erdgeschoss soll es neben der zentralen Theke eine Musik-Lounge, ein Café und schalldichte Übungsräume für Musikerinnen und Musiker geben. Über eine große Sitztreppe ist das Erdgeschoss mit der ersten Etage verbunden. Diese Sitztreppe soll auch für Veranstaltungen genutzt werden. In der ersten Etage selbst stehen vor allem Bücher für Jugendliche. Dazu kommen ein Kreativraum, Ruhe- und Aufenthaltsbereiche und eine Gaming Zone mit Computer- und Videospielen.
Essen: Bereiche für Jugendliche, Familien und Lernen
Etage zwei erinnert mit Sachliteratur und Lese- und Aufenthaltsbereichen noch am ehesten an eine klassische Bibliothek. Die dritte Etage wird vor allem für Familien eingerichtet. Es gibt Spiel-, Kuschel- und Aufenthaltsbereiche, außerdem ein Stillzimmer mit Küchenzeile. In der Etage darüber ist Platz zum Lernen mit digitalen Arbeitsplätzen, Einzel- und Gruppenarbeitszonen und -räumen sowie Workshopräumen. In Etage fünf beziehen die Mitarbeiterinnen und Mitarbeiter der Stadtbibliothek ihre Büros. Für die soll es Einzel- und Gruppenbüros sowie Besprechungsräume geben.
Neue Zentralbibliothek in Essen bekommt Dachterrasse
Viel Neues gibt es in der neuen Etage sechs. Auf das Dach des Gebäudes soll ein Veranstaltungssaal gebaut werden. Daneben gibt es dort eine Dachterrasse mit einem Garten. Die Stadt rechnet aktuell mit rund 13 Millionen Euro für den Umbau und die Einrichtung. Dabei seien aber unter anderem Berater, Veranstaltungstechnik und die Einrichtung des Cafés im Erdgeschoss noch nicht mit eingerechnet. 2025 läuft der Mietvertrag der Stadt für die aktuelle Zentralbibliothek im Gildehof aus. Bis dahin soll die Bibliothek am Rande des Kennedyplatzes eingerichtet sein.
Stadt Essen hofft auf Belebung der Innenstadt
Die Bibliothek soll ein Ort für alle werden und Anziehungspunkt in der Innenstadt. Darauf hofft der Essener Planungsdezernent Martin Harter. Die Stadt habe sich viel Mühe gemacht, um den richtigen Standort für die neue Bibliothek zu finden. Der Einzelhandel, der jetzt noch im Haus ist, wird dann ausziehen. Teilweise laufen die Mietverträge sowieso aus. Essenerinnen und Essener sollen in die Innenstadt kommen, weil sie nicht nur einkaufen wollen, erklärt Martin Harter im Interview mit Radio Essen-Moderatorin Anna Bartl.




